MENU

MENU
エクセリノ

家族の時間をもっと心地よく

exceLino

エクセリノ

LINEUP

自由を、もっと身近に。
デザインに、もっとこだわりを。

Bring freedom closer to you. Be more particular about design.

  1. HOME
  2. 商品ラインナップ
  3. エクセリノ

家族の時間をもっと心地よく

exceLino(エクセリノ)は、安心・快適・省エネを標準化した、次世代基準の高性能住宅です。
坪 60万円 という明瞭な価格設定でありながら、耐震等級3(許容応力度計算) による確かな構造安全性、ZEH基準 を満たす優れた断熱・省エネ性能を標準採用。
家族が長く安心して暮らせる「強さ」と、毎日の生活が心地よく続く「快適性」を、ちょうどよい価格で実現しました。
無駄を削ぎ落としたシンプルで洗練された設計をベースに、お客様のライフスタイルに合わせた自由度の高いプランニングも可能。
“ちょうどいい”では終わらない、性能もデザインも妥協しない住まい を、exceLinoが形にします。

FEATURES

エクセリノの特徴

  • 断熱性等級6

  • 耐震等級3

  • ZEH基準

POINT

エクセリノのポイント

  • exceLino

    exceLino

    家族が安心して長く暮らせることを第一に考えた“標準以上”の住宅商品です。断熱等級6・耐震等級3など、高性能をしっかり押さえながら、日常の使いやすさや心地よさを丁寧にデザイン。快適な温熱環境をつくる高断熱仕様と、地震に強い構造で、暮らしの基盤となる“安心と快適”を標準採用しました。

  • 快適と省エネ、どちらも叶える断熱6。

    快適と省エネ、どちらも叶える断熱6。

    断熱等級6は、高い室温保持性能によって冷暖房の効率を大きく向上させます。その結果、毎月の光熱費を抑えながら、四季を通じて快適な室内環境が続く、家計にも地球にもやさしい住まいに。長く住む家だからこそ、省エネ性能は将来の安心へとつながります。暮らしの質を底上げする高断熱を、標準仕様に。

  • 揺るがない安心を、ずっと。

    揺るがない安心を、ずっと。

    耐震等級3は、住宅が持つ“揺れに対する強さ”の最高ランク。防災拠点となる建物と同等の基準で設計され、繰り返しの大地震にも耐えうる堅牢な構造を実現しています。目に見えない安心こそ、家づくりで最も大切な価値。家族の未来を守るために、私たちは強さを標準にしています。

PLAN

プランのご紹介

AREA INFORMATION

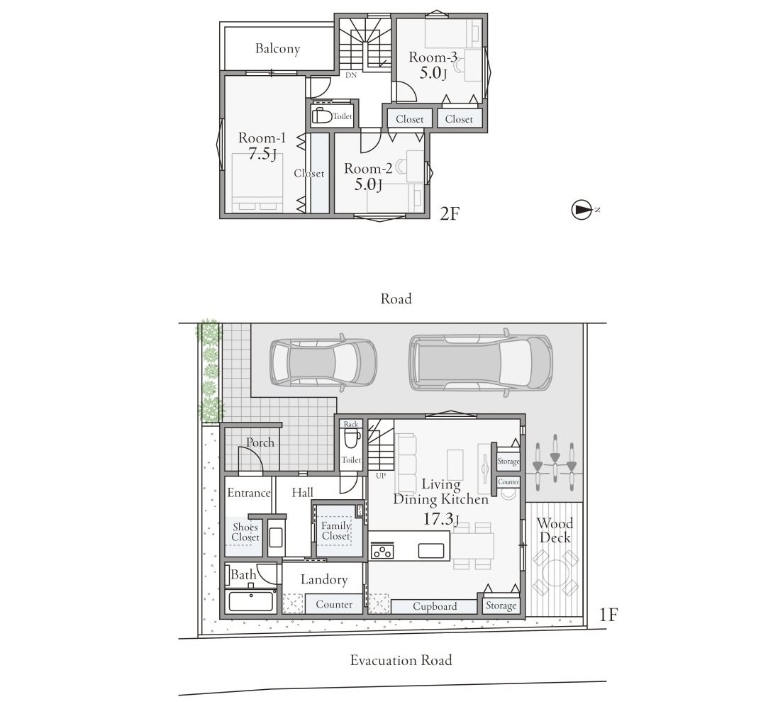
家事ラク動線とウッドデッキがつなぐ、開放リビングの家

家事のしやすさと家族時間の心地よさを両立したプランです。
1階は、ランドリー・ファミリークローク・キッチンが一直線につながる効率的な家事動線を採用。17.3帖のLDKはウッドデッキと緩やかに連続し、内と外がつながる開放的な空間を演出します。
2階には7.5帖の主寝室と、独立性の高い5帖×2室を配置。全居室にクローゼットを備え、暮らしにゆとりを生む収納力の高い3LDKを実現しました。

AREA DETAILS
  • 1階面積

    55.75㎡(16.86坪)

  • 2階面積

    40.63㎡(12.29坪)

  • 合計

    96.38㎡(29.15坪)

SPEC

設備・仕様

  • Panasonic Sクラス
I型2550 造作壁対面プラン

    Panasonic Sクラス
    I型2550 造作壁対面プラン

  • YKK ap 高性能樹脂窓 APW330

    YKK ap 高性能樹脂窓 APW330

  • Kmew 光セラ15・18

    Kmew 光セラ15・18

  • YKK ap 断熱玄関ドア ヴェナートD30

    YKK ap 断熱玄関ドア ヴェナートD30

  • Panasonic ベリティスフロアー ベースコート

    Panasonic ベリティスフロアー ベースコート

  • Panasonic オフローラ 1616サイズ

    Panasonic オフローラ 1616サイズ

  • Panasonic アラウーノ Z160シリーズ

    Panasonic アラウーノ Z160シリーズ

  • Panasonic シーライン 新スタンダードタイプ

    Panasonic シーライン 新スタンダードタイプ

  • 現場発泡硬質ウレタン(壁・天井)
アクアフォーム

    現場発泡硬質ウレタン(壁・天井)
    アクアフォーム

  • 押出法ポリスチレンフォーム(床下)
カネライトフォーム

    押出法ポリスチレンフォーム(床下)
    カネライトフォーム

※すべてイメージ画像につき、実際の仕様とは異なる場合がございます。

OTHER PRODUCTS

他の商品のご紹介

EXCEED KEEP LIVING CONTACT

各種お問い合わせ

エクシィードの家づくりに興味のある方は
お気軽にお問い合わせください