MENU

MENU
エクセア

〝安心″を超えて、家族を未来へつなぐ家

exceA

エクセア

LINEUP

自由を、もっと身近に。
デザインに、もっとこだわりを。

Bring freedom closer to you. Be more particular about design.

〝安心″を超えて、家族を未来へつなぐ家

強さと快適さを高いレベルで両立し、家族のこれからをしっかり支える住まい。そばにいる安心と、毎日が心地よく続く快適さで、絆を育む暮らしを叶えます。建築坪単価は68万円と、品質と性能を両立した適正価格です。

最も重視したのは、ご家族が永く、安心して暮らせること。災害に強い住まいを実現するため、耐震等級3(最高等級)を確保しました。これは消防署や警察署など防災拠点となる建物と同等の強度です。さらに、地震の揺れを吸収し、建物の損傷を大幅に軽減する制震ダンパーを標準装備しています。

また、一年中快適な暮らしのために、断熱性能にも徹底的にこだわりました。一般的な省エネ基準をはるかに上回る断熱性能6.5相当を実現。魔法瓶のように外気温の影響を受けにくく、夏は涼しく、冬は暖かい、冷暖房効率の良い住まいです。

最高等級の耐震性能と、次世代基準を超える断熱性能が叶える、安全で心地よい暮らしを実現します。

※坪単価68万円は注文住宅適用価格です。分譲住宅(建築条件付き)の場合、販売条件や積算基準が異なるため、建築価格が変動いたします。あらかじめご了承ください。

FEATURES

エクセアの特徴

  • 断熱等級6.5
    UA値0.35以下

  • 耐震等級3
    制震ダンパー

  • HEAT20
    G2仕様

POINT

エクセアのポイント

  • exceA〝安心″を超えて、家族を未来へつなぐ家

    exceA〝安心″を超えて、家族を未来へつなぐ家

    UA値0.35以下の断熱等級6.5を実現した住まいは、真夏・真冬でも外気に左右されにくく、家じゅうどこにいても快適。高い省エネ性により、光熱費の削減にも貢献します。

    さらに、建物の強さを示す耐震等級3を標準仕様とし、万が一の大地震にも備えた安心設計。加えて、揺れを吸収して建物へのダメージを軽減する制震ダンパーを組み合わせることで、地震に対する安全性をより一層高めました。

    高断熱・高耐震・高耐久を兼ね備えたこの住まいは、家族の健康と安心を守りながら、長く快適に暮らし続けるための“次世代スタンダード”です。

  • 耐震3×制震ダンパー

    耐震3×制震ダンパー

    最高等級の「耐震等級3」に加え、揺れを吸収して建物へのダメージを大幅に軽減する制震ダンパーを標準搭載。
    地震に強いだけでなく、繰り返しの余震にも粘り強く耐える、より“壊れにくい”住まいを実現します。
    高い耐震性能を備えながら、心地よさと暮らしやすさを追求した「長く安心して住み続けられる家」です。

  • 断熱等級6.5(UA値0.35以下)

    断熱等級6.5(UA値0.35以下)

    一年を通して安定した室温を保ち、四季の移ろいをより快適に楽しめる、先進の断熱性能「断熱等級6.5」を採用した住宅です。外気温に左右されにくい住空間は、夏は涼しく、冬はあたたかく、光熱費の負担も軽減。家族の健康と暮らしの質を守る、これからの時代にふさわしい住まいを形にしました。

PLAN

プランのご紹介

AREA INFORMATION

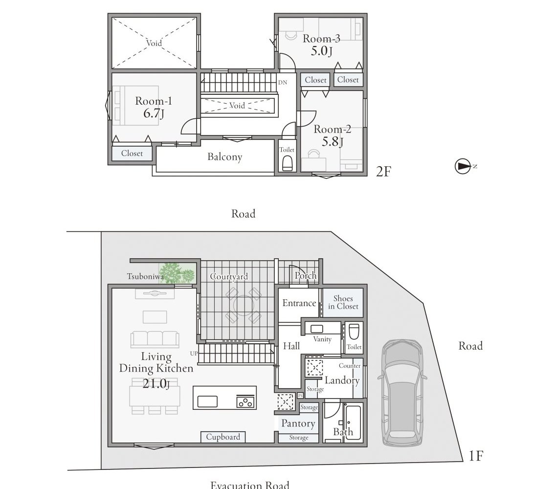
中庭のある住まい。

内と外がゆるやかにつながる中庭のある住まい。
LDKは21帖の開放的な大空間で、坪庭を望む心地よい光と風が家族の時間を包み込みます。
1階にはパントリー・ランドリールーム・大容量のシューズクロークを備え、家事動線もスムーズ。

AREA DETAILS
  • 1階面積

    12.71㎡

  • 2階面積

    59.67㎡

  • 合計

    100.86㎡(30.51坪)

SPEC

設備・仕様

  • Panasonic Sクラス
I型2550 造作壁対面プラン

    Panasonic Sクラス
    I型2550 造作壁対面プラン

  • Panasonic オフローラ 1616サイズ

    Panasonic オフローラ 1616サイズ

  • Panasonic シーライン 新スタンダードタイプ

    Panasonic シーライン 新スタンダードタイプ

  • Panasonic アラウーノ Z160シリーズ

    Panasonic アラウーノ Z160シリーズ

  • Panasonic ベリティスフロアー ベースコート

    Panasonic ベリティスフロアー ベースコート

  • Panasonic ベリティス

    Panasonic ベリティス

  • YKK ap 断熱玄関ドア イノベストD50

    YKK ap 断熱玄関ドア イノベストD50

  • YKK ap 高性能トリプルガラス樹脂窓 APW430

    YKK ap 高性能トリプルガラス樹脂窓 APW430

  • 宅配ボックス+ポスト Nasta BOX + POST

    宅配ボックス+ポスト Nasta BOX + POST

  • Kmew 光セラ15・18

    Kmew 光セラ15・18

  • 現場発泡硬質ウレタン(壁・天井)
アクアフォームNEO(壁)/アクアフォーム(天井)

    現場発泡硬質ウレタン(壁・天井)
    アクアフォームNEO(壁)/アクアフォーム(天井)

  • 押出法ポリスチレンフォーム(床下)

    押出法ポリスチレンフォーム(床下)

  • 第一種換気システム(熱交換器)

    第一種換気システム(熱交換器)

  • 制震ダンパー

    制震ダンパー

※すべてイメージ画像につき、実際の仕様とは異なる場合がございます。

OTHER PRODUCTS

他の商品のご紹介

EXCEED KEEP LIVING CONTACT

各種お問い合わせ

エクシィードの家づくりに興味のある方は
お気軽にお問い合わせください