MENU

MENU
ESTATE

土地・分譲物件情報

自由を、もっと身近に。
デザインに、もっとこだわりを。

Bring freedom closer to you. Be more particular about design.

自由を、もっと身近に。デザインに、もっとこだわりを。
  1. HOME
  2. 土地・分譲物件情報
  3. EXCEED山科東野中井ノ上町 PLAN1
EXCEED山科東野中井ノ上町
  • 山科区

  • 区画販売

  • 建築条件付き土地

EXCEED山科東野中井ノ上町

通りから一歩入った閑静な立地に、三方向が開
いた通風と採光に恵まれた新街区が誕生。
東西の前道は通り抜け出来ない道路ですのでお子様
の飛び出しや車の出し入れも安心。
オープン外構で開放感の高い街区デザインです。

  • 所在地

    山科区東野中井ノ上町 (MAP)

  • 交通

    地下鉄東西線「東野」駅 徒歩6分
    JR東海道本線「山科」駅 徒歩18分
    京阪バス 「八反田」停 徒歩5分

  • 小学校 /
    中学校

    大宅小学校 / 大宅中学校

  • 総区画数

    10区画

【山科区エリア】 
情報提供日:2026年3月19日 次回情報更新日:2026年4月18日

EXCEED山科東野中井ノ上町
POINT

ポイント

  • 未来基準の断熱性能を、いまの暮らしに。

    未来基準の断熱性能を、いまの暮らしに。

    断熱等級6〈UA値0.46〉を標準採用。外気の影響を受けにくく、一年を通して快適な室温を保ちます。冷暖房効率が高く、光熱費も抑えられる高性能な住まいです。

    ※断熱や耐震等級の認定には、窓の数や大きさ、壁量などによって、間取りに制限がかかる可能性がございます。

  • 最高等級の“構造品質”を約束。

    最高等級の“構造品質”を約束。

    耐震等級3を許容応力度計算で取得。設計段階で建物全体の強度バランスを精密に確認し、災害時にも倒壊しない安心の構造を実現しています。見えない部分にこそ、確かな信頼を。

    ※断熱や耐震等級の認定には、窓の数や大きさ、壁量などによって、間取りに制限がかかる可能性がございます。

  • 通りから一歩入った閑静な立地に新街区が誕生!

    通りから一歩入った閑静な立地に新街区が誕生!

    周辺はすでに成熟した住宅街。新しい街並みの中で、安心して子育てができる分譲地です。
    生活施設も身近に整い、毎日の暮らしにちょうどいい距離感。
    家族のこれからを見据えた、ゆとりある住環境がここにあります

LANDPLAN

区画図

PLAN

プラン別情報

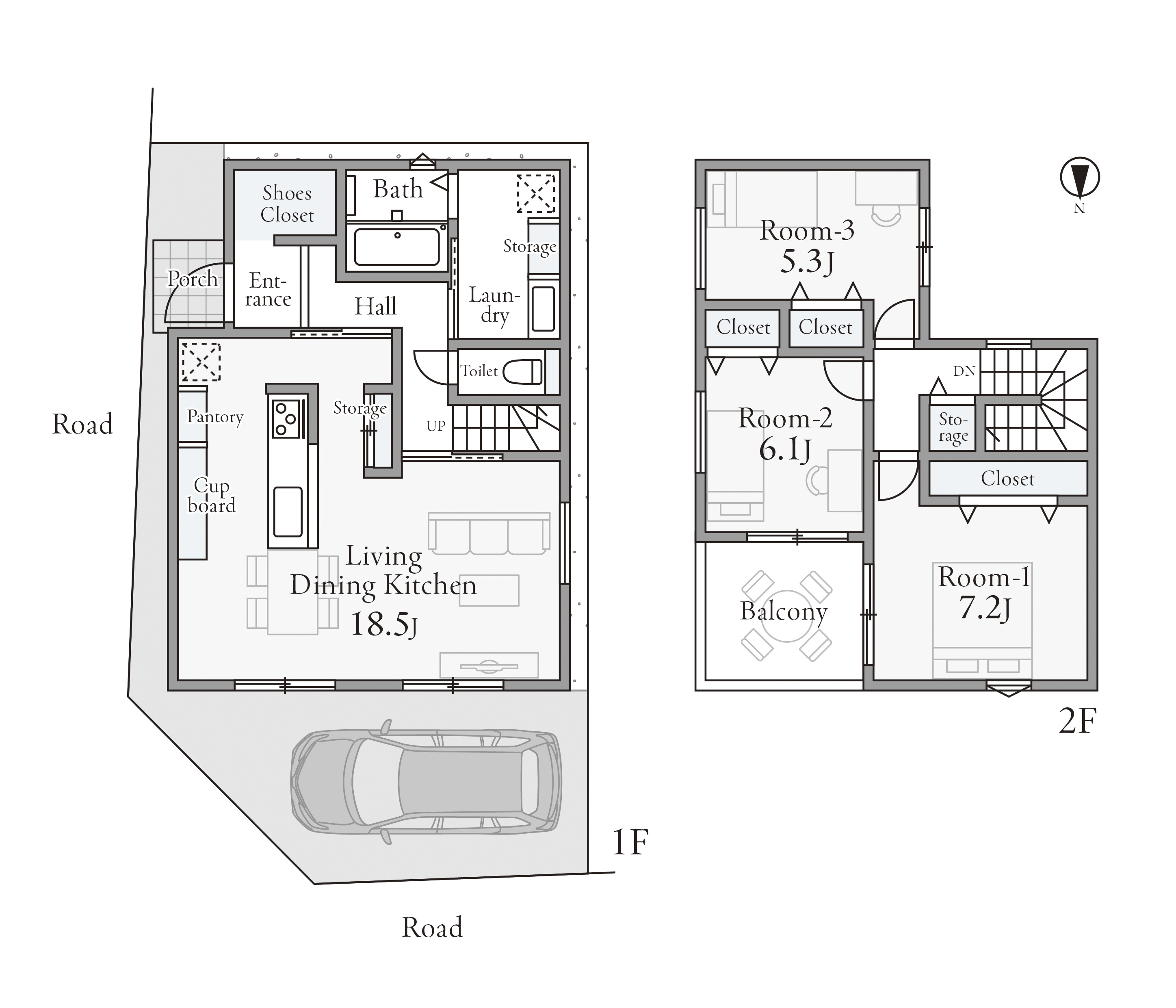
間取り図

参考プラン他

参考プラン

【参考プラン】
・建物参考プラン:延床面積89.26㎡/3LDK
・建物価格(参考):1,782万円(税込)
・土地価格:2,364万円
・合計参考価格:4,146万円(税込)

※ご希望の間取りによっては、金額の増減がございます。

設備・仕様

  • LIXIL 玄関ドア「ジエスタ」

  • LIXIL TW

  • 耐震

  • 断熱

  • 自由設計

  • 断熱材(壁・天井)

  • 断熱材(床下)

  • キッチン

  • 浴室

  • 洗面

  • トイレ

  • 室内ドア

  • 外壁

  • 門柱

住まいの顔にふさわしい、安心とデザイン

LIXILの玄関ドア「ジエスタ」は、高い断熱性能と防犯性を備えた高性能玄関ドアです。
外気の影響を抑える断熱構造により、室内の快適性を守りながら、住まい全体の省エネ性能向上に貢献。
豊富なデザインバリエーションで、住まいの外観に調和した一邸を演出します。

断熱・快適・美しさを兼ね備えた高性能窓

LIXIL TW 高性能窓を採用。フレームを極力スリム化することで、採光性と開放感、高いデザイン性を最大限に確保。高い防露性能や耐久性にも優れます。※メーカー参考写真につき、実際の仕様と異なります。

performance
最高等級の“構造品質”を約束。

耐震等級3を許容応力度計算で取得。
設計段階で建物全体の強度バランスを精密に確認し、
災害時にも倒壊しない安心の構造を実現しています。
見えない部分にこそ、確かな信頼を。
※断熱や耐震等級の認定には、窓の数や大きさ、壁量などによって、
間取りに制限がかかる可能性がございます。

insulation
未来基準の断熱性能を、いまの暮らしに。

断熱等級6〈UA値0.46〉を標準採用。
外気の影響を受けにくく、一年を通して快適な室温を保ちます。
冷暖房効率が高く、光熱費も抑えられる高性能な住まいです。

※断熱や耐震等級の認定には、窓の数や大きさ、壁量などによって、
間取りに制限がかかる可能性がございます。

free plan
自由設計だから叶う、世界に一つの住まい。

完全自由設計:間取り・外観・素材・動線まで自由自在。
安心の家づくり:建築士ならではの専門的な提案で、デザインと機能を両立。
未来を見据えた設計:家族構成の変化や将来の暮らしにも柔軟に対応。

現場発泡硬質ウレタン(壁・天井)
アクアフォーム

高性能な断熱材「アクアフォーム」
現場で発泡させることで、すき間なく家全体を包み込む吹付断熱「アクアフォーム」。
優れた気密・断熱性能で、冬は暖かく夏は涼しい快適な住空間を実現します。
省エネ性にも優れ、長く快適に暮らせる住まいづくりを支えます。
※イメージ画像につき、実際の仕様と異なります。

押出法ポリスチレンフォーム(床下)
カネライトフォーム

カネライトフォームは、優れた断熱性能を持ち、独立した気泡構造によって高い断熱性・防湿性を発揮します。また、フロンやホルムアルデヒドを含まない環境に配慮した素材であり、マテリアルリサイクルも可能です。
※イメージ画像につき、実際の仕様と異なります。

Panasonic Sクラス
I型2550 造作壁対面プラン

料理のしやすさと美しさを両立した、パナソニック Sクラス キッチン。
毎日の調理や片付けをスムーズにし、キッチン空間をより快適に彩ります。
深型食洗機、浄水器一体型水栓、カップボードなどが標準採用。
※メーカー参考写真につき、実際の仕様と異なります。

Panasonic オフローラ 1616サイズ

掃除の手間を軽くする素材・構造にこだわりながらも、スタイリッシュな空間デザインを実現。
保温浴槽、フラットラインLED照明などを標準採用。
魔法びんのような構造で、お湯の温度を長時間キープ。
追い焚き回数が減り、省エネ・節約につながります。
※メーカー参考写真につき、実際の仕様と異なります。

Panasonic シーライン 新スタンダードタイプ

家族みんなが使いやすく、毎日が心地よくなる洗面空間。
使いやすさ・お掃除のしやすさ・インテリア性を高めた洗面化粧台です。
フロートタイプも選択可能です。
床から浮いているデザインなので、圧迫感がなくスッキリ。
※メーカー参考写真につき、実際の仕様と異なります。

Panasonic アラウーノ Z160シリーズ

従来の陶器ではなく「有機ガラス系新素材(スゴピカ素材)」を使用し、
掃除のしやすさや節水性に優れている点が特徴です。
また、「激落ちバブル」という泡洗浄機能など、独自の清潔機能も備えています。
※メーカー参考写真につき、実際の仕様と異なります。

Panasonic ベリティスフロアー ベースコート

天然木そのものの雰囲気を再現する高意匠シートを使った仕上げ。
色柄のバリエーションが豊富で、建具・造作材とのコーディネート性も高められています。
※メーカー参考写真につき、実際の仕様と異なります。

Panasonic スタンダードレーベル or クラフトレーベル

スタンダードレーベルの室内ドアは、どんな空間にも自然に調和するデザインと、使いやすさを追求したベーシックモデルです。
シンプルでありながら洗練されたデザインが、住まい全体に統一感と落ち着きをもたらします。
※メーカー参考写真につき、実際の仕様と異なります。

Kmew 光セラ15・18

「光触媒+セラミックコート」によるセルフクリーニング性・耐候性の高い外壁材。
外壁表面に光触媒コーティングが施されており、
太陽光(主に紫外線)を浴びることで付着した有機汚れ・油分などを分解します。
汚れが付きにくく、また付いたとしても雨で自然に落ちやすいため、外壁の美観維持に優れています。
※メーカー参考写真につき、実際の仕様と異なります。

Nasta Box + Post
門柱ユニットタイプ

ポスト一体型宅配ボックス、上段が郵便ポスト、下段が宅配ボックスという構造。
郵便物・小荷物・宅配荷物をこの一台で受け取ることが可能です。
宅配ボックス部分には、厚さ 約7 cm 以内の薄型荷物を入れられる「複数投函口」があり、
荷物が1回入った後でもそれ以上荷物を受け付けられる仕組みがあります。
※メーカー参考写真につき、実際の仕様と異なります。

お支払い例

この物件のお支払い例

  • 販売
    価格

    3,680万円(税込)

  • 月々
    支払

    8.54万円~(税込)

※参考価格(土地価格+建物価格)をもとに試算しています。
※京都中央信用金庫、40年ローン、変動金利、金利0.55%の場合 
※審査の結果によっては金利が異なる場合があります。

ABOUT

物件概要

販売価格

3,680万円(税込)~

所在地 山科区東野中井ノ上町 (MAP)
交通 地下鉄東西線「東野」駅 徒歩6分
JR東海道本線「山科」駅 徒歩18分
京阪バス 「八反田」停 徒歩5分
最多価格帯 -
土地権利 所有権 販売区画数 10区画
敷地面積 81.12㎡(24.53坪)~ 総区画数 10区画
容積率 200% 地目 宅地
建ぺい率 60% 用途地域 第一種中高層住居専用地域
法律上の制限 準防火地域
開発内容 -
設備 電気・ガス・上下水
現状 宅地 建物完成時期 契約後9か月
接道状況 幅員 東側・南側5m 西側4.5m 構造 木造軸組工法
小学校 / 中学校 大宅小学校 / 大宅中学校 取引形態 売主
引き渡し 契約後9ヶ月 取引条件有効期限 2026年2月
備考 水道分担金15万円、建築確認一部負担金30万円、事務代行手数料10万円
販売価格

3,680万円(税込)~

所在地 山科区東野中井ノ上町 (MAP)
交通 地下鉄東西線「東野」駅 徒歩6分
JR東海道本線「山科」駅 徒歩18分
京阪バス 「八反田」停 徒歩5分
最多
価格帯
-
土地権利 所有権
総区画数 10区画
敷地面積 81.12㎡(24.53坪)~
販売
区画数
6区画
容積率 200%
地目 宅地
建ぺい率 60%
用途地域 第一種中高層住居専用地域
法律上の
制限
準防火地域
開発内容 -
設備 電気・ガス・上下水
現状 宅地
建物
完成時期
契約後9か月
接道状況 幅員 東側・南側5m 西側4.5m
構造 木造軸組工法
小学校 /
中学校
大宅小学校 / 大宅中学校
取引形態 売主
引き渡し 契約後9ヶ月
取引条件
有効期限
2026年2月
備考 水道分担金15万円、建築確認一部負担金30万円、事務代行手数料10万円
ACCESS

立地・アクセス

AROUND

周辺環境

  • 地下鉄東西線「東野」駅

    地下鉄東西線「東野」駅

    480m (徒歩 6分)

  • イオンタウン山科椥辻

    イオンタウン山科椥辻

    690m (徒歩 9分)

  • マツヤスーパー

    マツヤスーパー

    670m (徒歩 9分)

  • 業務スーパー

    業務スーパー

    480m (徒歩 6分)

  • 大宅小学校

    大宅小学校

    770m (徒歩 10分)

  • 大宅中学校

    大宅中学校

    1,480m (徒歩 19分)

  • なぎ辻病院

    なぎ辻病院

    1,000m (徒歩 13分)

  • 東野公園

    東野公園

    680m (徒歩 9分)

  • SHOPPING

    買い物施設

    • ドラックユタカ

      350m (徒歩 5分)

    • 西友山科店

      730m (徒歩 10分)

  • EDUCATION

    教育施設

    • こばと保育園

      340m (徒歩 5分)

    • さくら保育園

      540m (徒歩 7分)

    • 東山幼稚園

      1,190m (徒歩 15分)

  • HOSPITAL

    病院

    • 辻医院

      150m (徒歩 2分)

    • まさみ眼科クリニック

      370m (徒歩 5分)

    • 久保田歯科

      410m (徒歩 6分)

CONTACT

申し込みフォーム

下記フォームに必要項目をご入力ください。
※必須項目は必ずご記入ください。

  • STEP1

    入力

  • STEP2

    確認

  • STEP3

    完了

問い合わせ物件 EXCEED山科東野中井ノ上町
必須 お問い合わせ内容
必須 希望日時

時間:

※希望日2日前までにご予約お願い致します。
※当社からの予約確認自動返信メールを以って受付完了とさせて頂きます。
※当日の参加予約については、お電話にて直接ご連絡頂きますようご協力をお願い致します。

必須 お名前
必須 電話番号

※携帯またはご自宅どちらでもかまいません。

必須 メールアドレス

※必ず半角英数字でご入力ください。

必須 ご住所 郵便番号検索
任意 ご質問・ご相談等
必須個人情報の取り扱い

・データを送信される際の情報はSSL暗号化通信により保護されますので安心してご利用ください。

・自動返信メールの後、担当者からのご予約対応のご返信を以って受付完了とさせていただきます。また、弊社定休日や担当者がお休みをいただいている場合は翌営業日以降のご連絡となる場合がございます。
・メールアドレスを登録された方には、自動で確認メールを送信しております。メールアドレスの誤入力、携帯電話のドメイン指定受信の設定などにより確認メールを受信出来ない場合がございます。迷惑メールなどに入っている場合もございますので、再度受信設定をご確認ください。確認メールが届かない場合は、当社からの返信を受信出来ない可能性がございますので、お手数ですが、メール以外の連絡方法を追記の上、再度お問い合わせいただきますようお願い致します。

入力内容を確認する