MENU

MENU
ESTATE

土地・分譲物件情報

自由を、もっと身近に。
デザインに、もっとこだわりを。

Bring freedom closer to you. Be more particular about design.

自由を、もっと身近に。デザインに、もっとこだわりを。
  1. HOME
  2. 土地・分譲物件情報
  3. EXCEED浄土寺真如町
EXCEED浄土寺真如町

NEW!

  • 左京区

  • 建売住宅

EXCEED浄土寺真如町

NEW!

京都・浄土寺真如町。静寂と気品が息づく街並みに、あなただけの住まい。時を超えて愛される暮らしをここから。

  • 所在地

    左京区浄土寺真如町 (MAP)

  • 交通

    京阪鴨東線「神宮丸太町」駅 徒歩24分
    叡山電鉄叡山本線「元田中」駅 徒歩26分
    京阪鴨東線「出町柳」駅 徒歩25分

  • 小学校 /
    中学校

    第三錦林小学校 / 岡崎中学校

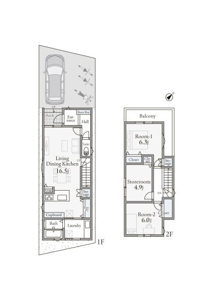
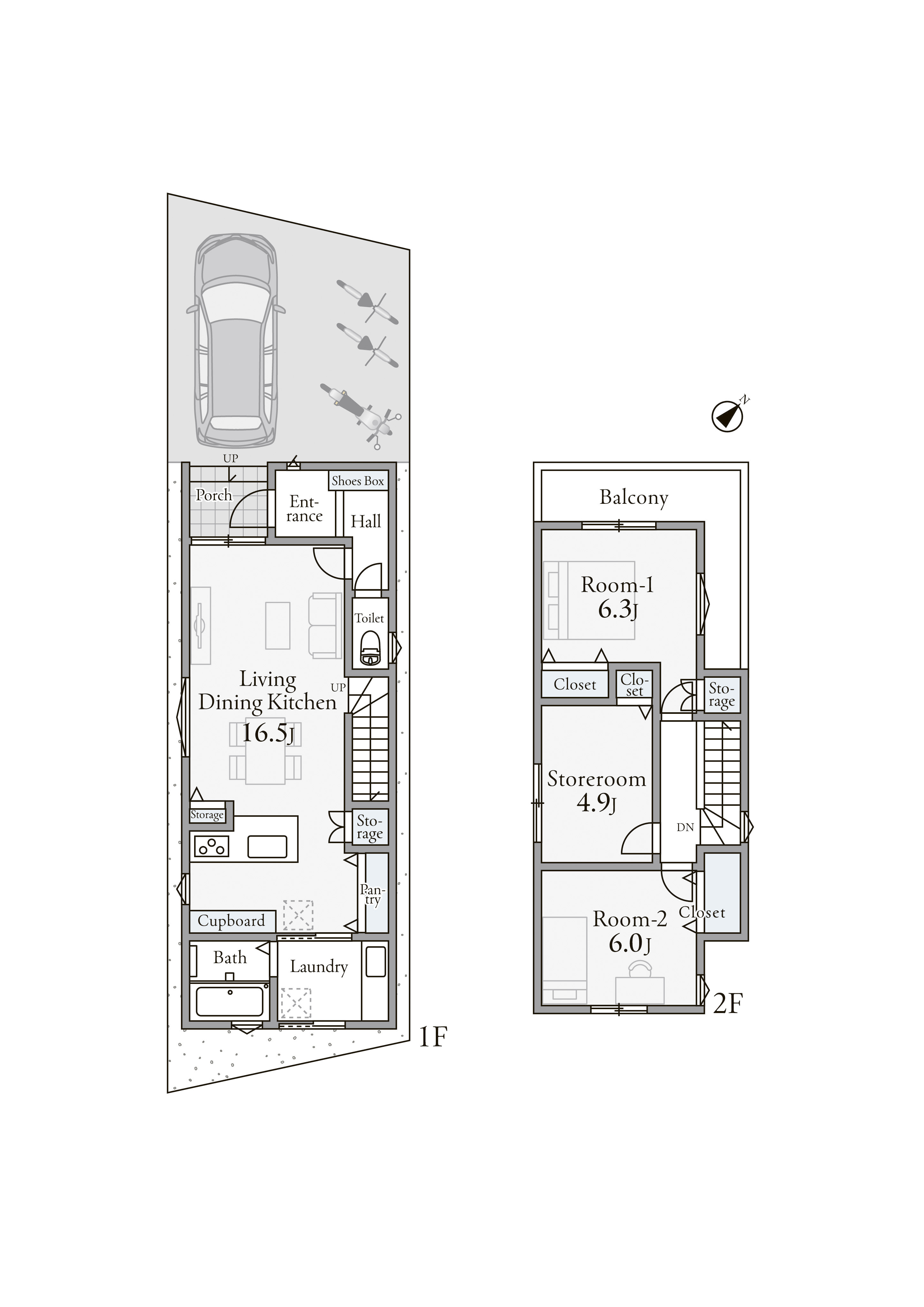
  • 間取り

    3LDK

【左京区エリア】 
情報提供日:2025年11月13日 次回情報更新日:2025年12月13日

EXCEED浄土寺真如町
PLAN

間取り図

PAYMENT

お支払い例

この物件のお支払い例

  • 販売
    価格

    4,480万円(税込)

  • 月々
    支払

    10.4万円~(税込)

※京都中央信用金庫、40年ローン、金利0.55%の場合 
※審査の結果によっては金利が異なる場合があります

ABOUT

物件概要

販売価格

4,480万円(税込)~

所在地 左京区浄土寺真如町 (MAP)
交通 京阪鴨東線「神宮丸太町」駅 徒歩24分
叡山電鉄叡山本線「元田中」駅 徒歩26分
京阪鴨東線「出町柳」駅 徒歩25分
地目 宅地
土地権利 所有権 建物面積 83.89㎡(25.37坪)
敷地面積 86.04㎡(26.02坪) 用途地域 第一種低層住居専用地域
建ぺい率 60% 容積率 100%
法律上の制限 高さ制限10m
建築確認番号 確認サービス第KS125-6110-00001号
設備 電気・ガス・公共上下水
現状 完成済 建物完成時期 -
接道状況 道路幅:4m 構造 木造軸組工法
小学校 / 中学校 第三錦林小学校 / 岡崎中学校 取引形態 仲介/(ケイ・エイ・コーポレーション)
引き渡し可能年月 即引渡可 取引条件有効期限 2025年12月
備考 -
販売価格

4,480万円(税込)~

所在地 左京区浄土寺真如町 (MAP)
交通 京阪鴨東線「神宮丸太町」駅 徒歩24分
叡山電鉄叡山本線「元田中」駅 徒歩26分
京阪鴨東線「出町柳」駅 徒歩25分
地目 宅地
土地権利 所有権
建物面積 83.89㎡(25.37坪)
敷地面積 86.04㎡(26.02坪)
用途地域 第一種低層住居専用地域
建ぺい率 60%
容積率 100%
法律上の
制限
高さ制限10m
建築
確認番号
確認サービス第KS125-6110-00001号
設備 電気・ガス・公共上下水
現状 完成済
建物
完成時期
-
接道状況 道路幅:4m
構造 木造軸組工法
小学校 /
中学校
第三錦林小学校 / 岡崎中学校
取引形態 仲介/(ケイ・エイ・コーポレーション)
引き渡し
可能年月
即引渡可
取引条件
有効期限
2025年12月
備考 -
ACCESS

立地・アクセス

CONTACT

申し込みフォーム

下記フォームに必要項目をご入力ください。
※必須項目は必ずご記入ください。

  • STEP1

    入力

  • STEP2

    確認

  • STEP3

    完了

必須問い合わせ物件 EXCEED浄土寺真如町
必須 お問い合わせ内容
必須 希望日時

時間:

※希望日2日前までにご予約お願い致します。
※当社からの予約確認自動返信メールを以って受付完了とさせて頂きます。
※当日の参加予約については、お電話にて直接ご連絡頂きますようご協力をお願い致します。

必須 お名前
必須 電話番号

※携帯またはご自宅どちらでもかまいません。

必須 メールアドレス

※必ず半角英数字でご入力ください。

必須 ご住所 郵便番号検索
任意 ご質問・ご相談等
必須個人情報の取り扱い

・データを送信される際の情報はSSL暗号化通信により保護されますので安心してご利用ください。

・自動返信メールの後、担当者からのご予約対応のご返信を以って受付完了とさせていただきます。また、弊社定休日や担当者がお休みをいただいている場合は翌営業日以降のご連絡となる場合がございます。
・メールアドレスを登録された方には、自動で確認メールを送信しております。メールアドレスの誤入力、携帯電話のドメイン指定受信の設定などにより確認メールを受信出来ない場合がございます。迷惑メールなどに入っている場合もございますので、再度受信設定をご確認ください。確認メールが届かない場合は、当社からの返信を受信出来ない可能性がございますので、お手数ですが、メール以外の連絡方法を追記の上、再度お問い合わせいただきますようお願い致します。

入力内容を確認する